spaces
email
| 323.449.9213
Benjamin
Brousseau Salon
Hamamori
Highglow Jewelry
LB-1
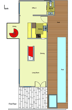
Library
PMCA
PMCA Shop
Redding
Seal Beach Residence
Urban Void Competition
Make Space for
Art Competition